

|
介质温度℃
|
ZCZG
|
≤250
|
|||||||
|
ZCZH
|
≤400
|
||||||||
|
公称压力(MPa)
|
ZCZG
|
2.5
|
|||||||
|
ZCZH
|
4.0
|
||||||||
|
工作压差(MPa)
|
ZCZG
|
0.1-2.5
|
|||||||
|
ZCZH
|
0.1-4.0
|
||||||||
|
公称通径(MPa)
|
15
|
20
|
25
|
32
|
40
|
50
|
65
|
80
|
100
|
|
功耗
|
130VA
|
480VA
|
|||||||
|
电源电压
|
AC220V DC 24V 其余规格可作特殊订货
|
||||||||
|
额定流量系数(KV)
|
3.8
|
7.4
|
10.3
|
18.8
|
25.7
|
41
|
58
|
85
|
154
|
|
泄漏量(ml/min)
|
按JB/T7352-94·F规定
|
||||||||


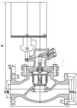
|
DN
|
L
|
H
|
D
|
D1
|
D2
|
D3
|
b
|
f1
|
f
|
n-d
|
|
10
|
160
|
298
|
90
|
60
|
34
|
41
|
16
|
4
|
2
|
4-Ø14
|
|
15
|
160
|
298
|
95
|
65
|
39
|
45
|
16
|
4
|
2
|
4-Ø14
|
|
20
|
200
|
304
|
105
|
75
|
50
|
55
|
16
|
4
|
2
|
4-Ø14
|
|
25
|
200
|
304
|
115
|
85
|
57
|
65
|
16
|
4
|
2
|
4-Ø14
|
|
32
|
200
|
314
|
140
|
100
|
65
|
78
|
18
|
4
|
2
|
4-Ø18
|
|
40
|
260
|
460
|
150
|
110
|
75
|
85
|
18
|
4
|
3
|
4-Ø18
|
|
50
|
300
|
460
|
165
|
125
|
87
|
100
|
20
|
4
|
3
|
4-Ø18
|
|
65
|
290
|
433
|
185
|
145
|
109
|
120
|
22
|
4
|
3
|
8-Ø18
|
|
80
|
310
|
433
|
200
|
160
|
120
|
135
|
22
|
4
|
3
|
8-Ø18
|
|
100
|
350
|
461
|
235
|
190
|
149
|
160
|
24
|
4.5
|
3
|
8-Ø22
|