|
公称压力(MPa)
|
1.6
|
2.5
|
4.0
|
6.4
|
10.0
|
16.0
|
|||||
|
壳化试验压力(MPa)
|
2.4
|
3.75
|
6.0
|
9.6
|
15.0
|
24
|
|||||
|
密封试验压力(MPa)
|
1.6
|
2.5
|
4.0
|
6.4
|
10.0
|
16.0
|
|||||
|
最高进口压力(MPa)
|
1.6
|
2.5
|
4.0
|
6.4
|
10.0
|
16.0
|
|||||
|
出口压力范围(MPa)
|
1.0-1.0
|
0.1-1.6
|
0.1-2.5
|
0.5-3.5
|
0.5-35
|
0.5-45
|
|||||
|
压力特性偏差(MPa)△P2P
|
GB12246-1989
|
||||||||||
|
流量特性偏差(MPa)△P2G
|
GB12246-1989
|
||||||||||
|
最小压差(MPa)
|
0.15
|
0.15
|
0.2
|
0.4
|
0.8
|
1.0
|
|||||
|
渗漏量
|
GB12245-1989
|
||||||||||
|
DN
|
15
|
20
|
25
|
32
|
40
|
50
|
65
|
80
|
100
|
125
|
150
|
200
|
250
|
300
|
350
|
400
|
500
|
|
Cv
|
1
|
2.5
|
4
|
6.5
|
9
|
16
|
25
|
36
|
64
|
100
|
140
|
250
|
400
|
570
|
780
|
1020
|
1500
|
|
零件名称
|
零件材料
|
|
阀体 阀盖 底盖
|
WCB
|
|
阀座 阀盘
|
2Cr13
|
|
缸套
|
2Cr13/铜合金
|
|
活塞
|
合金铸铁
|
|
导阀座 导阀杆
|
2Cr13
|
|
主阀弹簧
|
1Cr18Ni9Ti
|
|
导阀主弹簧
|
50CrVA
|
|
调节弹簧
|
60Si12Mn
|


|
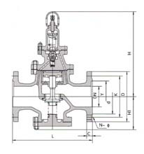
公称通径
DN |
外 形 尺 寸
|
|||
|
L
|
H
|
Hl
|
||
|
1.6/2.5MPa
|
4.0MPa
|
|||
|
15
|
160
|
180
|
295
|
90
|
|
20
|
160
|
180
|
330
|
98
|
|
25
|
180
|
200
|
330
|
110
|
|
32
|
200
|
220
|
330
|
110
|
|
40
|
220
|
240
|
345
|
125
|
|
50
|
250
|
270
|
345
|
125
|
|
65
|
280
|
300
|
350
|
130
|
|
80
|
310
|
330
|
385
|
160
|
|
100
|
350
|
380
|
385
|
170
|
|
125
|
400
|
450
|
400
|
200
|
|
150
|
450
|
500
|
415
|
210
|
|
200
|
500
|
550
|
475
|
240
|
|
250
|
650
|
525
|
290
|
|
|
300
|
800
|
580
|
335
|
|
|
350
|
850
|
620
|
375
|
|
|
400
|
900
|
660
|
405
|
|
|
450
|
900
|
730
|
455
|
|
|
500
|
950
|
750
|
465
|
|
|
公称通径
DN |
外 形 尺 寸
|
|||
|
L
|
H
|
Hl
|
||
|
6.4MPa
|
10.0/16.0MPa
|
|||
|
15
|
180
|
180
|
305
|
105
|
|
20
|
180
|
200
|
340
|
105
|
|
25
|
200
|
220
|
340
|
120
|
|
32
|
220
|
230
|
340
|
120
|
|
40
|
240
|
240
|
355
|
135
|
|
50
|
270
|
300
|
355
|
135
|
|
65
|
300
|
340
|
360
|
140
|
|
80
|
330
|
360
|
395
|
17
|
|
100
|
380
|
400
|
185
|
|
|
125
|
450
|
415
|
215
|
|
|
150
|
500
|
430
|
225
|
|
|
200
|
550
|
495
|
260
|
|
|
250
|
650
|
545
|
310
|
|
|
300
|
800
|
600
|
355
|
|
|
350
|
850
|
640
|
395
|
|
|
400
|
900
|
690
|
435
|
|
|
500
|
950
|
-
|
780
|
495
|