|
型号
|
公称压力
|
壳体试验压力
|
密封试验压力
|
适用介质
|
介质温度
|
|
ZL47F-16
|
1.6MPa
|
2.4MPa
|
1.76MPa
|
水、油等非腐蚀性液体
|
0~100°C
|


|
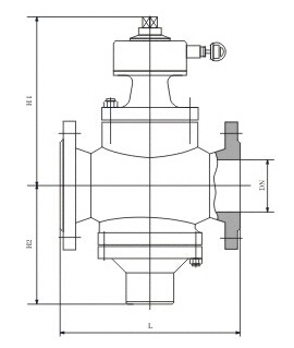
DN
|
15
|
20
|
25
|
32
|
40
|
50
|
65
|
80
|
100
|
125
|
150
|
200
|
250
|
300
|
350
|
备注
|
|
L
|
110
|
110
|
115
|
160
|
200
|
215
|
230
|
275
|
290
|
310
|
350
|
430
|
520
|
635
|
670
|
DN15--25
为螺纹连接
|
|
H1
|
122
|
122
|
137
|
182
|
191
|
197
|
205
|
259
|
268
|
334
|
357
|
407
|
452
|
486
|
555
|
|
|
H2
|
70
|
70
|
74
|
91
|
147
|
147
|
154
|
181
|
211
|
227
|
260
|
303
|
367
|
430
|
495
|
|
|
流量控制范围(m3/h)
|
0.1-1
|
0.1-1.5
|
0.2-2
|
0.5-4
|
1-6
|
2-10
|
3-15
|
5-25
|
10-35
|
15-50
|
30-80
|
40-180
|
100-300
|
150-1500
|
200-700
|